April 27,2026
สนง.คุมประพฤติโคราช ยกเลิกประกวดราคา สร้างอาคาร-บ้านพัก มูลค่า 38.7 ล้าน หลังมีผู้ยื่นแค่ 1 รายแถมไม่ตรงสเปก

ตามที่เมื่อวันที่ 21 เมษายน พ.ศ. 2569 กรมคุมประพฤติประกาศยกเลิกประกาศ ประกวดราคาจ้างก่อสร้างอาคารสำนักงานคุมประพฤติจังหวัดนครราชสีมาพร้อมอาคารชุดพักอาศัย ขนาด 18 ยูนิต และสิ่งก่อสร้างประกอบ จำนวน 1 หลัง ด้วยวิธีประกวดราคาอิเล็กทรอนิกส์ (e-bidding)
โดยระบุว่า ตามประกาศกรมคุมประพฤติวันที่ 24 มีนาคม 2569 เรื่อง ประกวดราคาจ้างก่อสร้างอาคารสำนักงานคุมประพฤติจังหวัดนครราชสีมา พร้อมอาคารชุดพักอาศัย ขนาด 18 ยูนิต และสิ่งก่อสร้างประกอบ จำนวน 1 หลังด้วยวิธีประกวดราคาอิเล็กทรอนิกส์ (e-bidding)และเอกสารประกวดราคาจ้างก่อสร้างด้วยวิธีประกวดราคาอิเล็กทรอนิกส์ (e-bidding) เลขที่ 10/2569 ลงวันที่ 24 มีนาคม 2569 กำหนดให้ผู้ยื่นเสนอราคาต้องเสนอราคาผ่านระบบจัดซื้อจัดจ้างภาครัฐด้วยอิเล็กทรอนิกส์ในวันที่ 3 เมษายน 2569 กำหนดพิจารณาผลการประกวดราคาอิเล็กทรอนิกส์ในวันที่ 7 เมษายน 2569 นั้น
คณะกรรมการประกวดราคาอิเล็กทรอนิกส์ ได้พิจารณาผลการประกวดราคาอิเล็กทรอนิกส์ (e-bidding) ดังกล่าวเรียบร้อยแล้ว เนื่องจากมีผู้ยื่นข้อเสนอแต่ไม่ถูกต้องตามเงื่อนไขที่กำหนดในเอกสารประกวดราคาอิเล็กทรอนิกส์กำหนด เพื่อให้เป็นไปตามระเบียบกระทรวงการคลังว่าด้วยการจัดซื้อจัดจ้างและการบริหารพัสดุภาครัฐ พ.ศ. 2560 ข้อ 56 กรมคุมประพฤติจึงยกเลิกการประกวดราคาตามประกาศกรมคุมประพฤติวันที่ 24 มีนาคม 2569 เรื่อง ประกวดราคาจ้างก่อสร้างอาคารสำนักงานคุมประพฤติจังหวัดนครราชสีมา พร้อมอาคารชุดพักอาศัย ขนาด 18 ยูนิตและสิ่งก่อสร้างประกอบจำนวน 1 หลัง ด้วยวิธีประกวดราคาอิเล็กทรอนิกส์ (e-bidding) และเอกสารประกวดราคาจ้างก่อสร้างด้วยวิธีประกวดราคาอิเล็กทรอนิกส์ (e-bidding) เลขที่ 10/2569 ลงวันที่ 24 มีนาคม 2569 ตั้งแต่บัดนี้เป็นต้นไป

โดยผู้เสนอ 1 รายดังกล่าว เสนอราคาอยู่ที่ 37,800,000 บาท
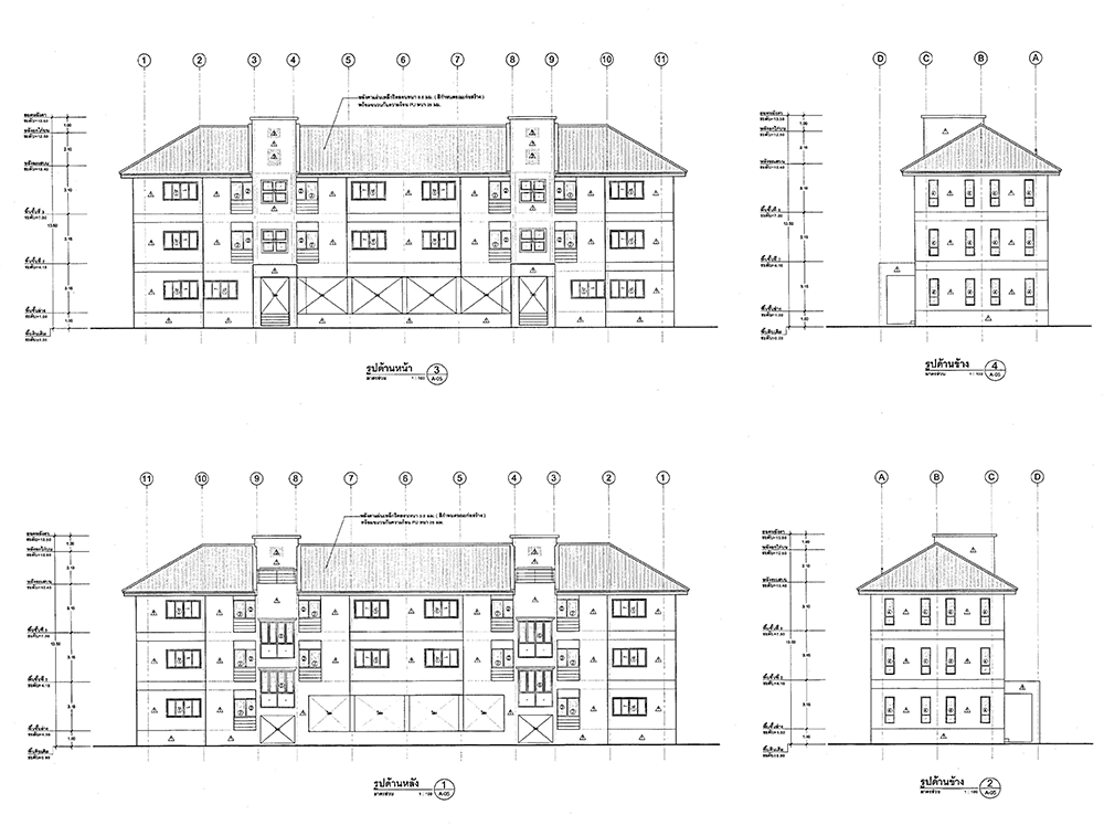
ทั้งนี้ การก่อสร้างอาคารสำนักงานฯ เป็นอาคาร 2 ชั้น และอาคารชุดที่พักอาศัยข้าราชการ 3 ชั้น (18 ยูนิต) รวมทั้งสิ่งก่อสร้างประกอบ บนที่ราชพัสดุทะเบียนเลขที่ ส.นม.997 (บางส่วน) ตำบลปรุใหญ่ อำเภอเมือง จังหวัดนครราชสีมา เนื้อที่ 4-2-28 ไร่
งบประมาณทั้งสิ้น 38,512,300 บาท โดยปี พ.ศ.2569 ตั้งงบประมาณ 5,776,900 บาท และปี 2570 ผูกพันงบประมาณ 32,735,400 บาท โดยกำหนดราคากลางงานก่อสร้างเป็นเงินทั้งสิ้น 38,724,900 บาท ประกอบด้วย
1.อาคารสำนักงานคุมประพฤติจังหวัดนครราชสีมา เป็นเงิน 17,715,870.58 บาท
2.งานครุภัณฑ์อาคารสำนักงานระบบเครื่องปรับอากาศ เป็นเงิน 366,100.50 บาท
3.อาคารชุดพักอาศัยข้าราชการ ขนาด 18 ยูนิต เป็นเงิน 11,541,574.41 บาท
4.ห้องเก็บสำนวนและหนังสือราชการ เป็นเงิน 756,087.36 บาท
5.งานครุภัณฑ์อาคารสำนักงานและบ้านพัก เป็นเงิน 7,048,743.98 บาท
6.ค่าใช้จ่ายพิเศษ แยกเป็น ระบบไฟฟ้า เป็นเงิน 1,264,572.06 บาท และระบบประปา เป็นเงิน 32,000.00 บาท
กำหนดเวลาส่งมอบงาน 450 วัน

อย่างไรก็ตาม สำนักงานคุมประพฤติจังหวัดนครราชสีมา เปิดดำเนินการ เมื่อ พ.ศ. 2533 โดยใช้อาคารสถานพินิจและคุ้มครองเด็กและเยาวชนจังหวัดนครราชสีมาเรื่อยมา จนกระทั่งปี พ.ศ. 2543 มีการปฏิรูปการบริหารจัดการภาศรัฐ แยกศาลยุติธรรรมออกจากกระทรวงยุติธรรม จึงทำให้สำนักงานคุมประพฤติจังหวัดนครราชสีมา ต้องจัดหาที่ตั้งสำนักงาน โดยการเช่าอาคารจากเอกชน ตลอดทั้งสำนักงานคุมประพฤติจังหวัดนครราชสีมา เป็นหน่วยงานที่เป็นประธานคุมประพฤติเขต 3 (ภาค 3) ทำหน้าที่ประสานกำกับ ดูแล สำนักงานคุมประพฤติในสังกัดภาคตะวันออกเฉียงเหนือตอนล่าง จ้านวน 8 จังหวัด 15 สำนักงาน ดังนั้น เพื่อเป็นศูนศนย์กลางในการปฏิบัติงานตามภารกิจของกรมคุมประพฤติ และยกระดับมาตรฐานการทำงานที่เป็นรูปธรรมและมีประสิทธิภาพ รวมทั้งเป็นขวัญและกำลังใจแก่บุคลากรที่มาปฏิบัติราชการประจำในหน่วยงานที่ตั้งทำการในพื้นพื้นที่จังหวัดนครราชสีมา สำนักงานคุมประพฤติจังหวัดนครราชสีมา จึงเห็นควรก่อสร้างอาคารสำนักงานจังหวัดนครราชสีมาพร้อมอาคารชุดพักอาศัย และสิ่งก่อสร้างประกอบ บนพื้นที่ราชพัสดุทะเบียนเลขที่ ส.นม. 997 (บางส่วน) ตำบลปรุใหญ่ อำเภอเมืองนครราชสีมา จังหวัดนครราชสีมา เนื้อที่ 4-2-28 ไร่
10 897



